4 Camere 4 Bagni 3 Box/Posti auto 248,67 m2
Caratteristiche principali
Codice
S140
Prezzo
650.000 EUR
Classe
VA
Locali
5
Mq Box
35,89
Mq Giardino
200
Mq Balcone
11,5
Altre caratteristiche e accessori
Stato Immobile
Ottimo
Grado
Signorile
Posizione
Periferia
Orientamento
Est Nord Ovest
Lati Liberi
3
Giardino
Privato
Arredi
Possibilità
Tipo Soggiorno
Soggiorno
Tipo Cucina
Abitabile
Riscaldamento
Autonomo
Tipo Riscaldam.
Caldaia a Condensazione
Tipo Impianto
Radiatori
Fonte Energetica
Metano
Acqua Calda
Autonoma
Raffrescamento
Split
Infissi
Legno Doppio Vetro
Serramenti
Ottimo
Persiana
Tapparella PVC
Pavim. Giorno
Parquet
Pavim. Notte
Parquet
Pavim. Cucina
Parquet
Pavim. Bagno
Parquet
Accesso Disabili
No
Accessori
Aria Condizionata, Bagno Handicap, Doppi Vetri, Impianto Fotovoltaico, Impianto Satellitare, Lavanderia, Porta Blindata, Ripostiglio, Tavolini Esterni, Vasca Idromassaggio, Veranda, Video Citofono, Zanzariere
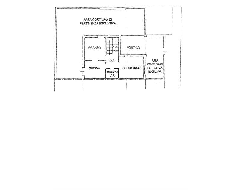
Porzione di casa di 200 mq circa disposta su 3 livelli con ingresso indipendente.
L'immobile è composto da piano terra con ingresso in portico con finiture omogenee al resto dell'appartamento per renderlo fruibile tutto l'anno, soggiorno, disimpegno, cucina con accesso diretto al giardino, sala da pranzo e bagno.
1° piano troviamo camera da letto matrimoniale con balcone e bagno privato, camera 3/4 sempre con accesso al balcone comunicante con la matrimoniale, camera singola con balcone privato, bagno a servizio del piano e 2 cabine armadi.
Al piano interrato abbiamo altra camera/ studio, bagno e ripostiglio sotto scala.

Completano la proprietà ampio garage con lavanderia al piano interrato e 2 posti auto esterni e giardino privato di circa 200 mq.

L'immobile si trova nella zona Crocetta a circa 1 Km dal Centro Città, e comodo ai servizi grazie alla presenza di diverse attività commerciali come ad esempio il nuovo supermercato Eurospar.

Riscaldamento autonomo e climatizzato
Crocetta , Modena (MO)
Cookie preference